Get Ada Door Hardware Height Pics

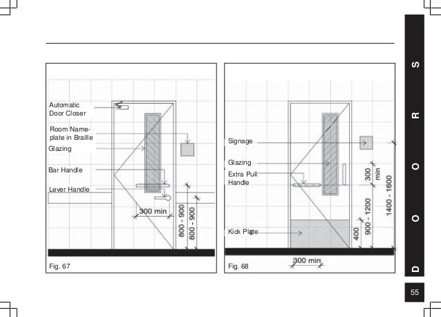
Get Ada Door Hardware Height Pics. The 2010 ada standards for accessible design (effective 03/15/2012) include an important change relative to the mounting height of hardware. These rules are meant to make your business simple to access and navigate for those with disabilities.

CD227220072 - CRL-U.S. Aluminum Bronze Anodized 250 Series Narrow Stile Pair 6'0 x 7'0 Center ...
CD227220072 - CRL-U.S. Aluminum Bronze Anodized 250 Series Narrow Stile Pair 6'0 x 7'0 Center ... from crlaurence.com
Locks used only for security purposes and not used for normal operation are. This article can act as a guide to help glaziers avoid common accessibility errors that include: If newly installed, they cannot exceed ½ inch in height.

The americans with disabilities act (ada) requires most businesses' doors to meet certain standards.

The 2010 ada standards for accessible design (effective 03/15/2012) include an important change relative to the mounting height of hardware. The margin of height is 38 inches minimum to a maximum of 48 inches aff. The following window and door hardware related guidelines may amesburytruth has developed many products which allow operating height to be reduced to help meet these guidelines. If newly installed, they cannot exceed ½ inch in height.